
| Magistrát města Jihlavy
Zastupitelstvo města Jihlavy 23. zasedání dne 15.12.2021 | 37/23 |
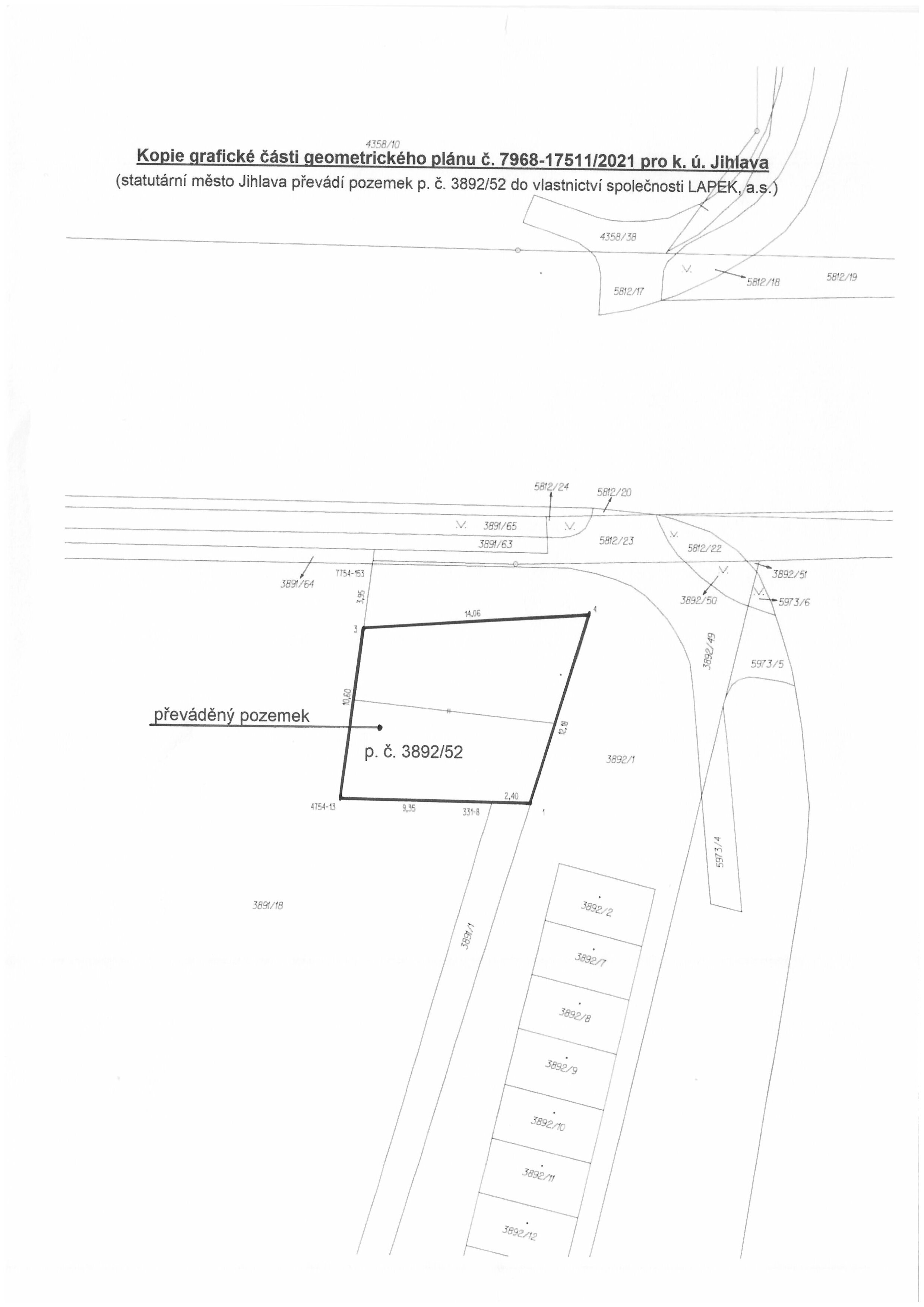
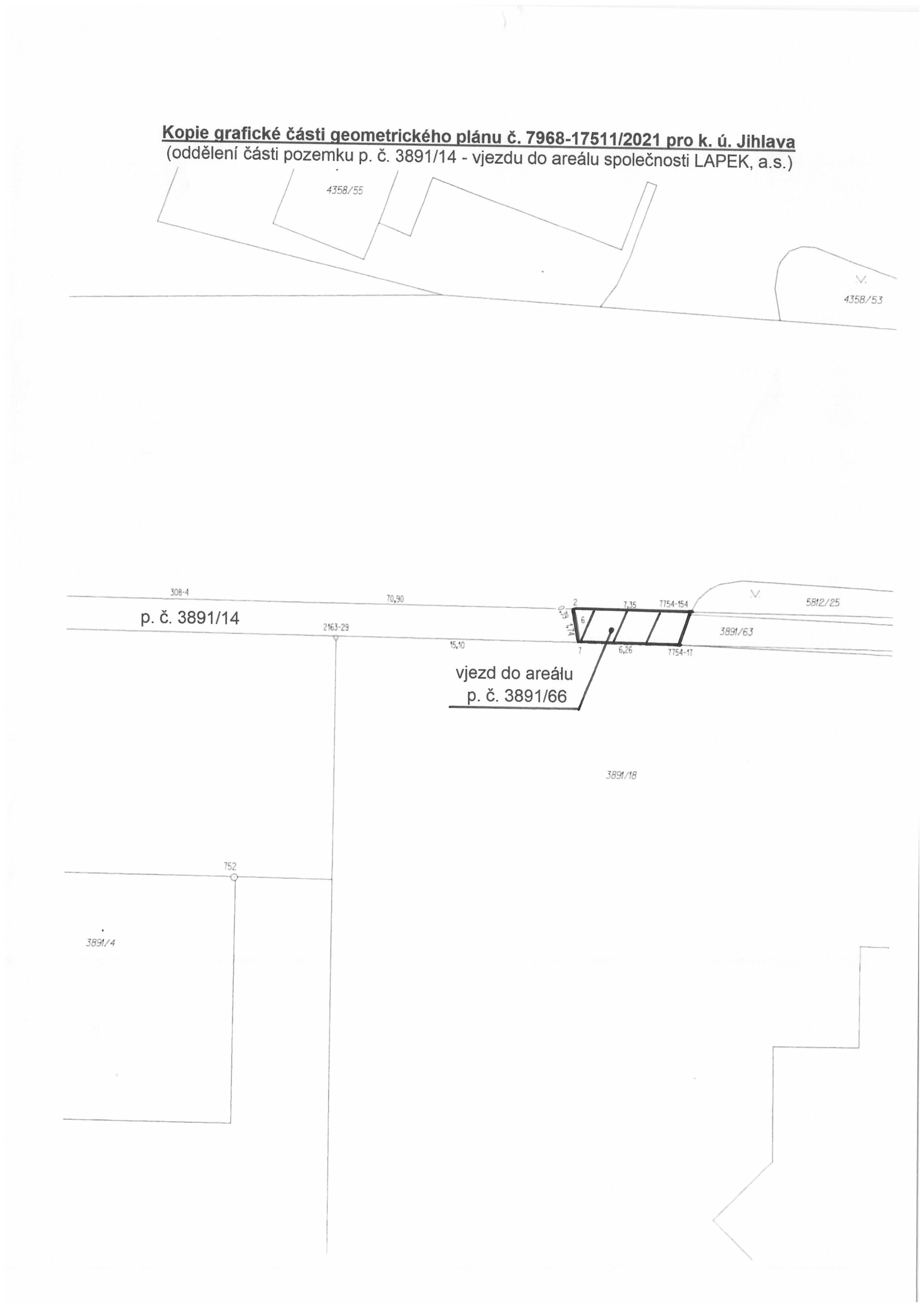
směnu části pozemku v k. ú. Jihlava p. č. 3891/14 dle geometrického plánu č. 7968-17511/2021 pro k. ú. Jihlava označené jako nově utvořený pozemek p. č. 3891/14 a pozemků v k. ú. Jihlava p. č. 3891/63, p. č. 3891/64 a p. č. 3891/65 ve vlastnictví společnosti LAPEK, a. s., se sídlem Žižkova 1923/111, Jihlava, IČO 440 15 593, za části pozemků v k. ú. Jihlava p. č. 3891/1 a p. č. 3892/1 uvedeným geometrickým plánem sloučených a označených jako nově utvořený pozemek p. č. 3892/52 ve vlastnictví statutárního města Jihlavy s finančním vyrovnáním ve výši 267.175 Kč ve prospěch společnosti LAPEK, a. s., dle důvodové zprávy za podmínek:
- úhrady celkové částky finančního vyrovnání společnosti LAPEK, a.s., statutárním městem Jihlava nejdéle do 30 dnů ode dne doručení vyrozumění o provedeném vkladu do katastru nemovitostí Katastrálním úřadem pro Vysočinu, Katastrální pracoviště Jihlava, statutárnímu městu Jihlava,
- podání návrhu na vklad vlastnického práva u Katastrálního úřadu pro Vysočinu, Katastrální pracoviště Jihlava, statutárním městem Jihlava po uveřejnění smlouvy v registru smluv, a to nejpozději do 30 dnů od podpisu směnné smlouvy oběma stranami,
- sjednání závazku smluvních stran smlouvy, pro případ kdy před podáním návrhu na vklad do katastru nemovitostí bude zjištěno, že uzavřená smlouva není způsobilá pro vklad práv do katastru nemovitostí, nebo pro případ zamítnutí návrhu na vklad práv dle této smlouvy, nebo zastavení řízení o vkladu těchto práv do katastru nemovitostí a zpětvzetí návrhu na vklad, se účastníci smlouvy zaváží uzavřít dodatek k uzavřené smlouvě, nebo smlouvu shodného věcného obsahu ve znění způsobilém pro vklad práv do katastru nemovitostí, a to v termínu dle aktuální potřeby, nejpozději však do 6 měsíců ode dne, kdy bude tato skutečnost zjištěna,
- úhrady veškerých nákladů souvisejících s podáním návrhu na vklad vlastnického práva do katastru nemovitostí statutárním městem Jihlava.
| Provede: MO - pozemkové oddělení | Termín: 15.6.2022 |
| Jméno, odbor/funkce | Podpis | |
|---|---|---|
| Předkladatel | Ing. arch. Martin Laštovička | |
| Zpracovatel | Ing. Irini Mátlová |
| Jméno, odbor/funkce | Stanovisko | |
|---|---|---|
| Právní posouzení | Bc. Věra Pavlíková, vedoucí oddělení MO |
ANO |
| Finanční kontrola | Ing. Petr Štěpán, vedoucí MO | ANO |
| Stanoviska dotčených odborů | Ing. Bc. Karel Trojan, PhD. vedoucí oddělení komunálních služeb OD |
ANO |
Ing. Katarína Ruschková, vedoucí OŽP |
ANO | |
| Ing. Alena Kottová, vedoucí ORM | ANO | |
| Stanoviska dotčených komisí rady města a výborů zastupitelstva města | Majetková komise Rady města Jihlavy |
ANO |
| Tajemník | Mgr. Ing. Evžen Zámek |
Příloha č.1: 21-11003-p20049 - Snímek částí pozemků převáděných městem.jpg
Příloha č.2: 21-11003-p20050 - Snímek části pozemku převáděné společností LAPEK, a.s..jpg
Příloha č.3: 21-11003-p20051 - Snímek pozemků převáděných společností LAPEK, a.s..jpg
Příloha č.4: 21-11003-p20052 - Snímek s vyznačením vjezdu do areálu společnosti LAPEK, a.s..jpg
Příloha č.5: 21-11003-p20053 - Celkový snímek katastrální mapy.jpg
| Důvodová zpráva | |
Majetkový odbor Magistrátu města Jihlavy předkládá na základě uzavřené Smlouvy o uzavření budoucí směnné smlouvy vedené pod č. 2/MO/2018 ze dne 05.01.2018, ve znění jejího dodatku č. 1 ze dne 21.02.2018 vedeném pod č. 2/MO/2018/1, ke schválení směnu pozemků v k. ú. Jihlava ve vlastnictví statutárního města Jihlava a společností LAPEK, a. s., se sídlem Žižkova 1923/111, Jihlava, IČO 440 15 593 (dále jen Společnost), která byla uzavřena v souvislosti s realizací stavby, vyvolané a vybudované statutárním městem Jihlava: "Úprava křižovatky ul. Žižkova a Rantířovská a vybudování parkoviště P+R, zastávek a chodníků Jihlava" (dále jen Stavba) a kterou byli mimo jiné dotčeny pozemky ve vlastnictví Společnosti (viz přílohy tohoto návrhu). Tento návrh řeší majetkoprávní vypořádání dotčených pozemků s finančním vyrovnáním ve prospěch Společnosti ve výši 267.175 Kč dle podmínek budoucí směnné smlouvy. Podmínky budoucí směnné smlouvy byly stanoveny Společností, jinak odmítla majetkoprávní vypořádání realizovat.
Popis problému:
05.01.2018 - na základě usnesení Zastupitelstva města Jihlavy č. 410/17-ZM byla mezi statutárním městem Jihlava a Společností uzavřena Smlouva o uzavření budoucí směnné smlouvy vedené pod č. 2/MO/2018 (dále jen Smlouva), jejímž předmětem byl závazek uzavřít budoucí směnnou smlouvu, na základě které Společnost převede městu části pozemků dotčených stavbou a město převede Společnosti části pozemků, které má Společnost zájem nabýt do svého vlastnictví.
21.02.2018 - uzavřen dodatek č. 1 ke Smlouvě, na základě kterého byl změněn článek Smlouvy, kterým byl doplněn o další dotřený pozemek, a to pozemek v k. ú. Jihlava p. č. 3891/18 ve vlastnictví Společnosti.
Dle vypracovaných geometrických plánů, na základě výše uvedeného a vydaného kolaudačního souhlasu na Stavbu, proběhne směna pozemků takto: p. č. 3892/52 o výměře 141 m2 ve vlastnictví statutárního města Jihlavy za p. č. 3891/14, ostatní plocha, ostatní komunikace, o výměře 162 m2, p. č. 3891/63, ostatní plocha, ostatní komunikace, o výměře 98 m2, p. č. 3891/64, ostatní plocha, ostatní komunikace, o výměře 55 m2, a p. č. 3891/65, zeleň, o výměře 86 m2 ve vlastnictví společnosti LAPEK, a.s.
Smlouvou a jejím dodatkem č. 1 byly mimo jiné určeny tyto podmínky směny: - Společnost převede městu části pozemků v k. ú. Jihlava p. č. 3891/14 a p. č. 3891/18; potřebné geometrické plány a tržní znalecký posudek, týkající se uvedených částí pozemků uhradí město. - Město převede Společnosti části pozemků v k. ú. Jihlava p. č. 3891/1 a p. č. 3892/1; geometrický plán a tržní znalecký posudek, týkající se uvedených částí pozemků uhradí Společnost. - V případě, že cena pozemků dle tržního znaleckého posudku bude nižší než 1.495 Kč/m2, bude pro finanční vyrovnání aplikována cena 1.495 Kč/m2.
09.03.2021 - SLUŽBY MĚSTA JIHLAVY s.r.o., jako správce místních komunikací, s předmětnou směnou pozemků souhlasí.
01.09.2021 - Společnost písemně souhlasí s převodem pozemku v k. ú. Jihlava p. č. 3891/65 (vzniklý pás zeleně při chodníku) za kupní cenu ve výši 500 Kč/m2.
Dle smluvní dohody o kupní ceně pozemků p. č. 3891/14, p. č. 3891/63 a p. č. 3891/64, dle vypracovaného znaleckého posudku na kupní cenu pozemku p. č. 3892/52 a dohodnuté kupní ceně pozemku p. č. 3891/65 mezi městem a Společností je hodnota směňovaných pozemků stanovena takto: p. č. 3892/52 . 141 m2 x 1.750 Kč/m2 = 246.750 Kč ve vlastnictví statutárního města Jihlavy za p. č. 3891/14 . 162 m2 x 1.495 Kč/m2 = 242.190 Kč, p. č. 3891/63 . 98 m2 x 1.495 Kč/m2 = 146.510 Kč, p. č. 3891/64 . 55 m2 x 1.495 Kč/m2 = 82.225 Kč. p. č. 3891/65 . 86 m2 x 500 Kč/m2 = 43.000 Kč.
Celkové finanční vyrovnání ve prospěch Společnosti na základě výše uvedeného bylo stanoveno ve výši 267.175 Kč.
Záměr směnit pozemky v k. ú. Jihlava dle tohoto návrhu byl zveřejněn pod č. j. MMJ/MO/233509/2021, UID jihlavp21v02lgp od 16.11.2021 v souladu se zákonem č. 128/2000 Sb., v platném znění.
Návrh řešení: Uzavřít směnnou smlouvu dle návrhu na usnesení.
Stanoviska dotčených odborů:
01.03.2021 - Odbor životního prostředí Magistrátu města Jihlavy s převodem pozemku p. č. 3891/65, zeleň, souhlasí.
01.03.2021 - Odbor dopravy Magistrátu města Jihlavy se směnou pozemků souhlasí.
03.03.2021 - Odbor rozvoje města Magistrátu města Jihlavy uvádí, že směnou části pozemku p. č. 3892/1 ve vlastnictví města nedojde k dotčení infrastruktury a ploch řešených v rámci projektu IROP - Stavby. Dotčená plocha byla řešena v rámci funkčně samostatné II. etapy projektu Stavby, která nebyla předmětem vlastního projektu podpořeného dotací IROP. Předmětnou směnnou smlouvu lze tedy uzavřít.
Stanoviska komise RM / výboru ZM:
29.09.2021 - Majetková komise Rady města Jihlavy na svém 60. jednání projednala směnu předmětných pozemků v k. ú. Jihlava se Společností a doporučila v poměru hlasů 7:0:2 (pro:proti:zdržel se) nabytí pozemku v k. ú. Jihlava p. č. 3891/65 za cenu 500 Kč/m2. 07.10.2021 - Rada města Jihlavy na své 79. schůzi projednala zápis z jednání Majetkové komise Rady města Jihlavy ze dne 29.09.2021 pod usnesením č. 1046/21-RM k výše uvedenému doporučení majetkové komise bez výhrad a současně tímto usnesením schválila zveřejnění záměru směnit předmětné pozemky.
Výsledek předběžné finanční kontroly: Kontrola provedena v souladu s příslušnými vnitřními předpisy.
Právní posouzení: Předkládaný návrh je vyhotoven v souladu s ust. § 2184 a násl. zákona č. 89/2012 Sb., občanský zákoník, v platném znění, která upravují směnnou smlouvu, a v souladu § 2079 a zastupitelstvu města je předkládán dle § 85 písm. a) zákona č. 128/2000 Sb., o obcích (obecní zřízení), ve znění pozdějších předpisů po předcházejícím zveřejnění majetkové dispozice dle § 39 odst. 1 zák. č. 128/2000 Sb., v platném znění. |